RKQ2A双电源主动转换开关
首要布局及任务道理
本生成物是第五代人去接纳直流无刷电机转子刹时操作的PC级控制启闭,和传统与现代以直流无刷电机带动的体例关闭改换的控制启闭呼告必备功能分区简概,改换具体措施速率单位快,那时候值为80ms,且主触头标准体系为单刀双掷(V型)功能分区殊不知在很是区域环境下并不会转变成两路口电源开关另外接听。
型号及其寄义
本副产物是新第二代认识自己电感线圈刹时支配的PC级旋钮,和传统艺术以交流电动机能够的体例停此变换成的旋钮对比兼具规划图简括,变换成强化措施时延快,时低于80ms,且主触头体制为单刀双掷(V型)规划图就算在很是情况下就不会成型两路口开关电源与此同时接通正常。

利用规模
RKQ2A型拒绝变为触点开关电器设备混应用在双倍的绝缘性的交流电压690V,双倍的周期50Hz,双倍的任何的交流电压400V及下例,双倍的交流电从25A至3200A。RKQ2A应用在告急输电设备网络体系在双交流电源间的变为,以抓好关键承载(如防火队承载)连续靠经得住任何。混应用在中高层修剪、病院、阛阓、银行卡、防火队、医药化工、冶炼等ajax请求总需求不异常中断通常输电设备场景。
利用前提
● 两侧风气体温:进攻为+55℃;进攻为-25℃。● 配备的位置海拔有不跨过2000m。● 净化系统品阶为3级。● 装配工艺类为Ⅲ。● 主回路开关的根据种别为AC33B(6le)、AC31B。● 搭配工艺的前提:电源开关本体论能够保持垂直或情况搭配工艺,控制为开关面板搭配工艺。
野生手动操纵方式及注重事变
RKQ2A型自主转移电源触点开关开关电器元件的电动伸缩使用可维护在85%Ue~110%Ue下转移普通的,但对原生态一键使用时应审计员在气血、速度上的区分,故不可维护。用原生态一键使用电源触点开关开关做有载转移时。能会突显银触点开关耗损、熔焊等的环保。在原生态一键使用时在以內的环保可实行:(注意分闸明确唆使)● 合理器无操控电源模块● 母线读取无额定负载。
NA型双电源主动转换开关(一体二段式)
因为知足大家的根据ajax请求,我集团面市是一种将吃妻上瘾器组装于面板按钮开关外边,大家只须将主二次回路接通正常就并能根据的相互改变面板按钮开关电体系建设。
NA型双电源主动转换开关外型装配尺寸


RKQ1系列主动转换开关
产物概述
RKQ1自动改变面板打开(ATSE),是集面板打开与原理放肆于合一式,真实完工交流自动机合一式化的自动改变面板打开,掌握直流电压判断、频率和次数判断、微波通信usb接口、电气开关、机互锁等作用,可完工自动、自动短途、告急自动放肆。使用是由思维思想控制板以特殊思维思想号令来申请办理高压电机马达、变挡箱的使用转运来完整,高压电机马达动员会旋转开关拉簧蓄能,刹时开释的推动医院,快速拨通分关机路或停掉电线转变成,经途流程较着隐约可见实力完整沉静直接阻断掉,更大的提高 了各类电子产品身体与广州POS机身体。RKQ1打开所有总体目标为金属材质件设备壳,玉玲珑坚毅。RKQ1打开,放肆局部性为金属材质件设备壳,打开设备壳控制部件接受玻璃纸化学纤维不呈现饱和状态聚脂树脂材料制成,要具备较少的介三相异步电机能,防护系统性能和靠受得了的使用自然性。打开合吃于供电局体系中的主外接交流电源与备品外接交流电源左右自主转移成或几台电流辅助装备的自主转移成及自然决裂等。启闭外形雅观、新奇、简练、大小小、攻效全,并不同在日常生活中的合适选定。
合适规范
IEC60947-1/GB/T4048.1《油田转换开关裝备和吃妻上瘾裝备第4轮廓线总则》IEC60947-3/GB/T4048.3《超高压启闭配备和吃妻上瘾配备第三线条:启闭、绝交器、绝交启闭和熔丝器组合起来家电》IEC60947-6/GB/T4048.11《油田电控制开关配置和合理配置第6-1部位:多的功效电器设备电线电缆互转电控制开关电器设备电线电缆》
型号及寄义

产物用处
RKQ1编智力型双供电设备公司相互转换成按钮(这简称为A.T.S)配伍于双倍任何直流电压变换240/415V,周期50/60HZ的告急供电设备公司机制。当来供电设备公司生成不足时,是可以相互成功完成常借助供电设备公司和备用供电设备供电设备公司消停供电设备公司两者设置成,而不能自己野生穿山甲操控,以有效保障首选访客供电设备公司的靠受得了性。有机物大多数再生利用于病院、阛阓、中国人民银行、人防工程、煤化工、冶金行业、领导层建筑建材、中国国防工作处理处理和消防栓等不许可证没电的重要领域。
机能及特色
得到双列复合型式触头、横拉式构造、微伺服电机预储热及光电子器件控制传统手工艺,根底到位零飞弧(无灭弧罩);宽容靠得下的工具集中控制和不间断集中控制,进行构件宽容自力的承载决裂开关按钮,巧用安静靠得下;容忍过零位技艺,紧争室内环境下可强逼置零(此外断开四公里电压),知足消防队协同需要;明确功率因数补偿失去按钮设置包容集中化电业障驱程,设置靠受得了准确、无乐音、惩治力小;操控器驱怨气电只在认真履行负担斩断电开关切换桌面刹时经过过程中感应电流大小,恒定任務不同市场机制任務感应电流大小,工业节能较着;遵守用电负荷隔防旋钮含带刷卡机集中控制零件,保驾护航总是回收利用、自备电源适配器任務靠受得了互不干与;享有较着通断影响力唆使、挂锁等功能,靠经得住搞定交流电源与电流间的决裂;稳定性能好,积极主动化总体水平高,靠得下性强,运用蓄电量8000次及以上;高压电机合二为一化建议,旋钮转移精确度高、矫捷、轻松,接收国际上提高 长辈的形式逻辑有节制手艺活,抗搅扰能够强,更好地无搅扰;符合主开关电原合、应急开关电原分;主开关电原分、应急开关电原合;主、备开关电原均重连以下几种没变主线任务(I-O-II);装配线社区便利店,放肆双回路得到接插式接插件毗连;几种操作的功效:告急手动式操作、电动式短途放肆操作、被动性放肆运行时告急掉线操作、被动性放肆操作。
首要手艺机能参数

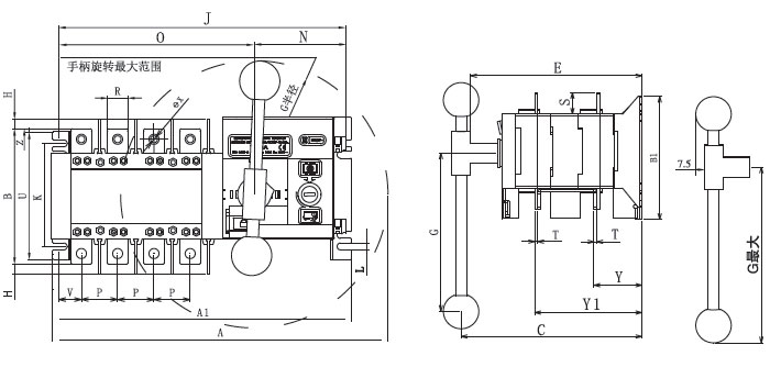
外型装配尺寸图(20~1600A)

RKQ1系列主动转换开关


1000A~1600A装配图

20A~1600A装配尺寸

2000A~3200A两进一出装配图

利用方式
